See Our New Floorplan Design Options. Select Floorplans/Explore By Series/NEW Floorplan Designs.

Exterior Front Rendering
Exterior Rear Rendering
Living/Dining Rendering
Kitchen Rendering
Description

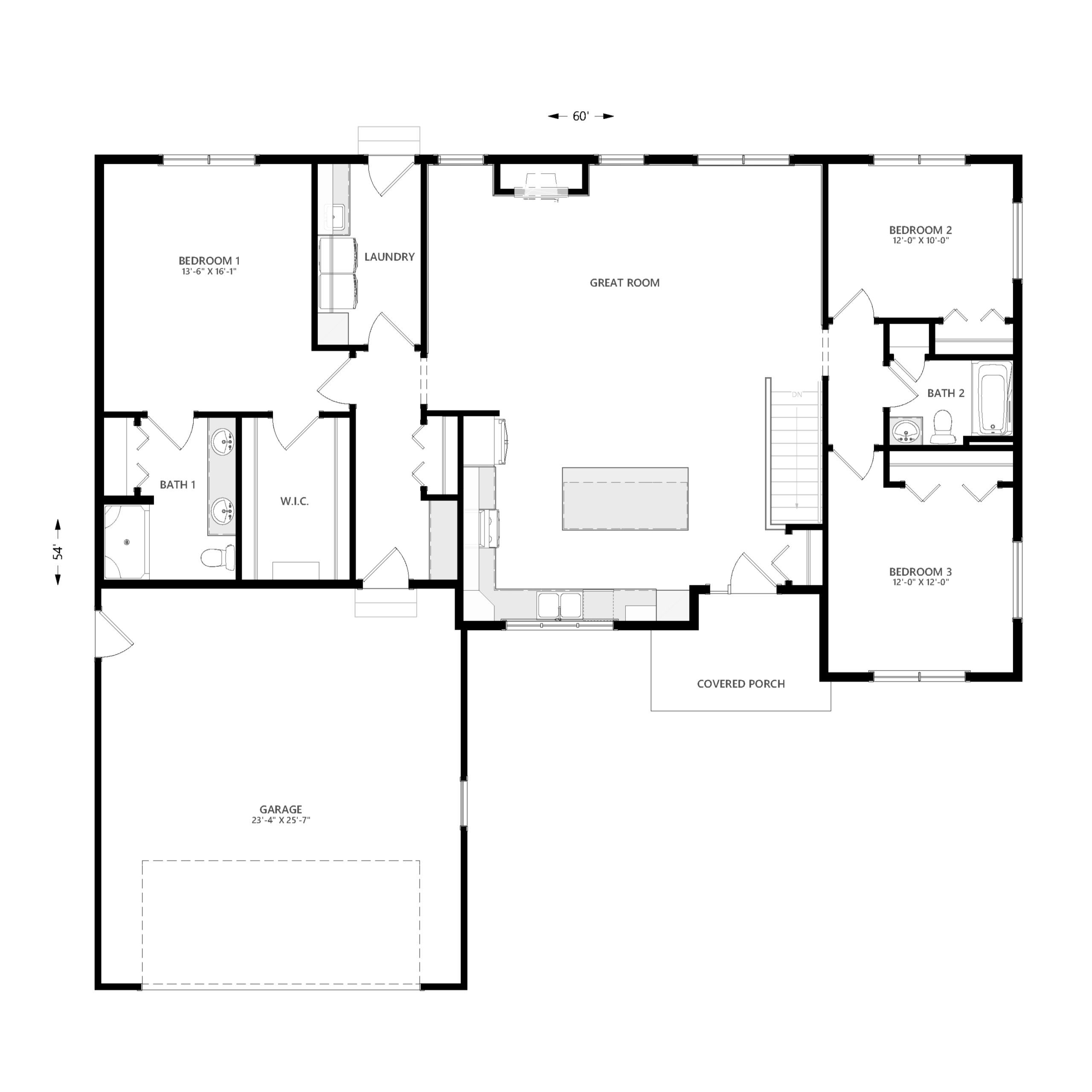
The updated Dalton floor plan brings modern design to a customer favorite with a functional, one-story layout. With 3 bedrooms, 2 bathrooms, and a 2-car garage, this 1764 sq. ft. home offers open-concept living designed for today’s lifestyle.

The spacious great room flows into a bright kitchen with a large island and dining area, perfect for entertaining. A split bedroom layout gives the primary suite privacy, featuring a dual-vanity bath and large walk-in closet. Two additional bedrooms with a full bath can be used for family, guests, or a home office.

Everyday convenience is built in with an owner’s entry from the garage plus a separate laundry room. Homeowners can also choose to add a back deck with patio doors, flank-window fireplace, or a full basement that expands the design with another bedroom, bath, storage space, and a large gathering area.

The new Dalton is a versatile ranch-style home that combines comfort, style, and smart design options to fit your lifestyle.

DALTON [REFRESHED]

WO402
Details
  • NEW Floorplan Designs, Wausau Originals
  • One Story
  • 1764 Sqft
  • 60x54 Footprint
  • 3 Bedrooms
  • 2 Bathrooms
  • 4179 Favorited
Available Features
  • 2 Car Garage
  • Covered Front Porch
  • Deck
  • Design Options Available
  • Family Choice
  • Fireplace
  • Flex Space
  • Front Porch
  • Home Office
  • Kitchen Island
  • Main Floor En-Suite Bedroom
  • Main Floor Laundry
  • Mudroom
  • Open Floor Plan
  • Open Great Room
  • Owners Entry
  • Split Bedroom Design
  • Storage
  • Walk In Closet
Floor Plan Preview

CONNECT WITH US

Website - Contact Us

COMPLETE THIS FORM TO OBTAIN PRICING ON CUSTOM HOME

Wausau Homes pricing varies based on the location you are building and other variables. For more information on pricing and on building a Wausau Home, please fill out our contact form below. We will get you connected with an authorized independent builder that services your build location.

What is the zip code where you currently live?

Where do you want to build?

ZIP not found

Invalid ZIP format.

Find a Custom Home Builder

Select a state to browse our independent home builders near you or search by state and zip. Each Wausau Homes Builder is an independent local business who will contract with you to build your home. Your local builder will contract with local suppliers and subcontractors to build your home.

Map DataMap data ©2020 Google
Map data ©2020 Google
Map Data
Map data ©2020 Google

Browse Custom Home Builders by State

Select a state and find a home builder near you.

APPLE RIVER CUSTOM HOME DESIGN STUDIO
KL BUILDERS, LLC

108 W. Railroad Apple River,Illinois 61001 (608) 778-6497

APPLE RIVER CUSTOM HOME DESIGN STUDIO
KL BUILDERS, LLC

108 W. Railroad Apple River,Illinois 61001 (608) 778-6497

APPLE RIVER CUSTOM HOME DESIGN STUDIO
KL BUILDERS, LLC

108 W. Railroad Apple River,Illinois 61001 (608) 778-6497

APPLE RIVER CUSTOM HOME DESIGN STUDIO
KL BUILDERS, LLC

108 W. Railroad Apple River,Illinois 61001 (608) 778-6497

APPLE RIVER CUSTOM HOME DESIGN STUDIO
KL BUILDERS, LLC

108 W. Railroad Apple River,Illinois 61001 (608) 778-6497

APPLE RIVER CUSTOM HOME DESIGN STUDIO
KL BUILDERS, LLC

108 W. Railroad Apple River,Illinois 61001 (608) 778-6497

APPLE RIVER CUSTOM HOME DESIGN STUDIO
KL BUILDERS, LLC

108 W. Railroad Apple River,Illinois 61001 (608) 778-6497

APPLE RIVER CUSTOM HOME DESIGN STUDIO
KL BUILDERS, LLC

108 W. Railroad Apple River,Illinois 61001 (608) 778-6497

APPLE RIVER CUSTOM HOME DESIGN STUDIO
KL BUILDERS, LLC

108 W. Railroad Apple River,Illinois 61001 (608) 778-6497

Login in or create an account to save your favorities and create your own brochure.

Return to Search
Description

A part of our dream series, the tamarack floor plan features 3 bedrooms and 1.5 bathrooms with a foot print of 44x30 feet and 1342 total square feet of living space.

TAMARACK FLOOR PLAN

DR230
Details
  • Dream Series
  • Two Story
  • 1342 Sqft
  • 44x30 Footprint
  • 3 Bedrooms
  • 1.5 Bathrooms
  • 90 Favorited
Available Features
  • Owners Entry
Floor Plan Preview

User Registered Successfully

An error occurred. Please try again.

Login Successfully

An error occurred. Please try again.

A password reset link has been sent to your email address.

No user found with that email address.

An error occurred. Please try again.

MCHENRY CUSTOM HOME DESIGN STUDIO

Sexton Homes LLC

Home Builder in Woodstock, Illinois

Contact Us

Contact Information

Address

Wausau Homes Woodstock 1400 N. Seminary Ave. Unit M Woodstock, Illinois 60098

Get Directions
Contact

Patrick Sexton 815-271-2325

sextonp@wausauhomes.com
Hours

Monday - Friday : 9:00 AM to 5:00 PM Saturday : 10:00 AM to 2:00 PM

About Our Design Studio

Wausau Homes McHenry is a premier home design studio that offers inspiration on everything from creating a custom home plan to selecting the interior and exterior features that will make your home unique. Custom builder Patrick Sexton has been working in the home building industry for nearly 40 years. His experience includes production home building, residential and commercial renovations, and for the past 20 years, high end custom homes in the North Shore suburbs of Chicago.

Patrick is well versed and experienced in all phases of the custom home building process. His extensive background and knowledge of home building, ensures that every home is built efficiently, with extreme care and superior quality. Wausau Homes McHenry is ready to turn your dream into reality. With advanced 3D home rendering technology, he will walk you through your custom new home before it’s even built. Once the home is created your way, he will provide a firm price and move-in date ensuring no surprises during the building process.

Each Wausau Homes Builder is an independent local business, so you can have the confidence and ease of dealing with a local builder. Plus, each Wausau Homes Builder has access to all of the Wausau Homes design tools and Wausau Homes components. Our goal is to become the premier Home Builder in Northern Illinois. Select one of our many home plans, whether your dream is a starter home, a home for retirement, a vacation home, or a great family home - Wausau Homes McHenry is ready to create your dream home.

Wausau Homes McHenry is located about an hour from Chicago, and about 30 minutes from Lake Geneva, Wisconsin. The Northern suburbs of Chicago offer great schools, safe and family friendly neighborhoods, along with many forest preserves, and parks. The Chain O’ Lakes area is a popular destination for summer recreation, fishing, camping and boating. Chicago is about an hour away, and offers sports outings, great restaurants, Navy Pier, and Lake Michigan. Lake Geneva is a great place to relax and enjoy beaches, lake front dining, and boat tours.

About The Area We Serve

Wausau Homes McHenry serve area homebuyers in McHenry, Lake, Cook, DuPage, Will, Kendall, and Kane Counties.